Vendita Villa a schiera a Cesena - Rif. VSC512v9

Centro Urbano | 560.000,00 | Mq 191,55 | 4 | 2

Descrizione

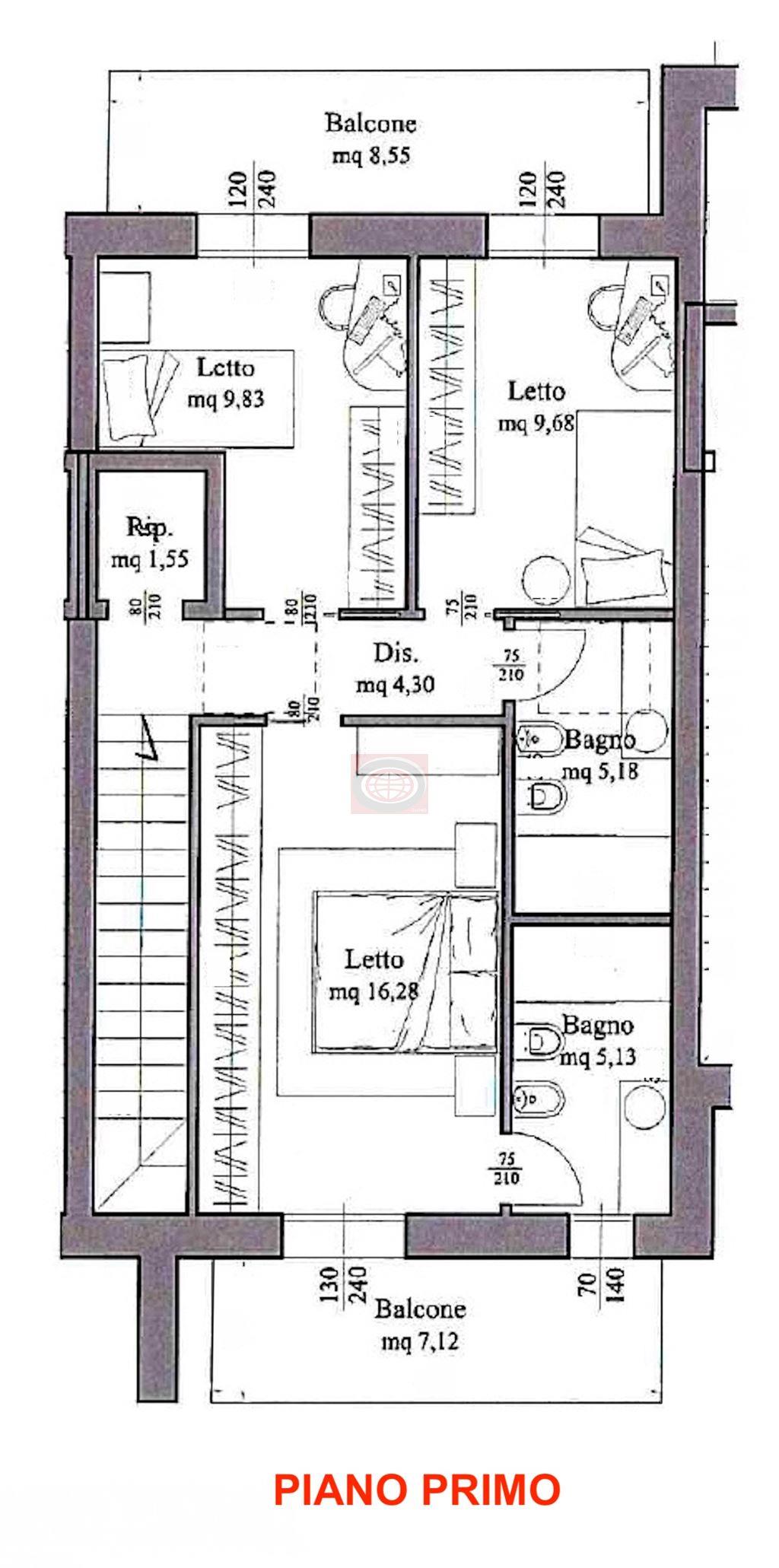
Cesena centro urbano (VSC512v2-3-4-5-6-7-8-9), proponiamo villette indipendenti di prossima costruzione a 500 metri dalle mura del centro storico. Villette centrali così composte: PIANO TERRA ingresso in ampia e luminosa zona giorno di oltre 40 mq caratterizzata dall'ampia vetrata che si affaccia sul giardino privato, ripostiglio, antibagno, bagno; PIANO PRIMO disimpegno, camera padronale con bagno privato (mq 21,50) due camere, bagno, ripostiglio, due balconi; PIANO INTERRATO garage di 47 mq c.a oltre a bagno lavanderia e ripostiglio. FINITURE costruite con metodologie ad alto risparmio energetico (CLASSE A) le villette sono tutte servite da riscaldamento a pavimento con pompa di calore, termostati ambientali, impianto fotovoltaico 4 Kw, infissi in PVC completi di zanzariere a scomparsa e tapparelle motorizzate, impianto di climatizzazione completo di macchinari, impianto VMC localizzata (ventilazione meccanica controllata), impianto anti-intrusione completo, impianto di aspirazione centralizzata, predisposizione per domotica e per batteria d'accumulo. il costo delle villette centrali varia da 555.000,00 ai 560.000,00 , la differenza è dovuta dalla grandezza del giardino. CONSEGNA fine 2027/inizio 2028. N.B. le presenti informazioni non costituiscono elemento contrattuale.

Dettagli

  • Riferimento: VSC512v9
  • Tipologia: Villa a schiera
  • Comune: Cesena
  • Zona: Centro Urbano
  • Cucina: Angolo cottura
  • Camere: 3
  • Bagni: 2
  • Box: Doppio
  • Piano: Su più livelli di 2
  • Anno costruzione: 2026
  • Stato conservazione: Nuovo
  • Stato: In progetto
  • Spese cond. annue €:
  • Riscaldamento: Autonomo
  • Caratteristiche

    Balconi, Giardino di proprietà 40 mq, Condizionatore, Allarme

    Efficienza energetica

    Localizzazione - Cesena

    Richiedi informazioni

    Via Polenta, 26)

    47521 Cesena (FC)

    0547.631708

    Vendite     Affitti

    Ai sensi e per gli effetti degli articoli 13 e 6 del Regolamento UE 2016/679, dichiaro di aver preso visione dell’informativa di Agenzia Globo di Garavelli Gianni & C. Sas per il trattamento dei dati personali.

    Via Polenta, 26 - 47521 Cesena (FC) - Telefono 0547.631708 - Email info@agenziaimmobiliareglobo.it


    Vendita Villa a schiera a Cesena - Rif. VSC512v9

    4 | Mq 191,55 | 560.000,00

    Cesena

    Cesena centro urbano (VSC512v2-3-4-5-6-7-8-9), proponiamo villette indipendenti di prossima costruzione a 500 metri dalle mura del centro storico. Villette centrali così composte: PIANO TERRA ingresso in ampia e luminosa zona giorno di oltre 40 mq caratterizzata dall'ampia vetrata che si affaccia sul giardino privato, ripostiglio, antibagno, bagno; PIANO PRIMO disimpegno, camera padronale con bagno privato (mq 21,50) due camere, bagno, ripostiglio, due balconi; PIANO INTERRATO garage di 47 mq c.a oltre a bagno lavanderia e ripostiglio. FINITURE costruite con metodologie ad alto risparmio energetico (CLASSE A) le villette sono tutte servite da riscaldamento a pavimento con pompa di calore, termostati ambientali, impianto fotovoltaico 4 Kw, infissi in PVC completi di zanzariere a scomparsa e tapparelle motorizzate, impianto di climatizzazione completo di macchinari, impianto VMC localizzata (ventilazione meccanica controllata), impianto anti-intrusione completo, impianto di aspirazione centralizzata, predisposizione per domotica e per batteria d'accumulo. il costo delle villette centrali varia da 555.000,00 ai 560.000,00 , la differenza è dovuta dalla grandezza del giardino. CONSEGNA fine 2027/inizio 2028. N.B. le presenti informazioni non costituiscono elemento contrattuale.

    Riferimento: VSC512v9

    Tipologia: Villa a schiera

    Comune: Cesena

    Zona: Centro Urbano

    Cucina: Angolo cottura

    Camere: 3

    Bagni: 2

    Box: Doppio

    Piano: Su più livelli di 2

    Anno costruzione: 2026

    Stato conservazione: Nuovo

    Stato: In progetto

    Spese cond. annue €:

    Riscaldamento: Autonomo

    Balconi, Giardino di proprietà 40 mq, Condizionatore, Allarme

    Efficienza energetica