Vendita Attico a Cesena - Rif. ATC63b

San Mauro in Valle | 1.059.000,00 | Mq 329,57 | | 3

Descrizione

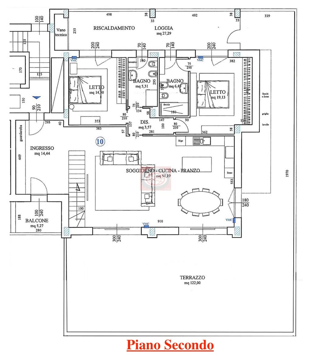
S. MANURO IN VALLE (ATC63b): in contesto di dieci unità di prossima realizzazione proponiamo splendido ATTICO disposto su due livelli e servito da ascensore. Al piano nobile troviamo un ampio ingresso/guardaroba con la luminosa zona giorno con cucina a vista per un totale di ben 68 mq , 2 camere da letto matrimoniali con 2 bagni e un ampio terrazzo su tre lati di c.a. 150 mq, ideale per pranzi e cene all'aperto e un ulteriore balcone dove affaccia l'ingresso/guardaroba. Al piano superiore (sottotetto alto) altri tre vani da sfruttare come camere e studio e un vano per il bagno. Completa il tutto un garage di 34 mq.
L'immobile verrà realizzato con FINITURE DI PREGIO e CARATTERISTICHE DI ALTO RISPARMIO ENERGETICO, ovvero: cappotto termico, riscaldamento autonomo a pavimento con pompa di calore, impianto fotovoltaico da 4 kw, infissi in pvc con anta-ribalta, zanzariere e avvolgibili in alluminio coibentato e motorizzati, tetto in legno ventilato, gronde e pluviali in acciaio inox, bagni con sanitari sospesi e box doccia in alluminio e cristallo, cassetta di sicurezza, luce di emergenza. Saranno inoltre forniti COMPLETI DI MACCHINARI e quindi già funzionanti i seguenti impianti: climatizzazione, allarme, aspirazione centralizzata, VMC (ventilazione meccanica controllata). N.B. Le presenti informazioni non costituiscono elemento contrattuale.

Dettagli

  • Riferimento: ATC63b
  • Tipologia: Attico
  • Comune: Cesena
  • Zona: San Mauro in Valle
  • Cucina: Angolo cottura
  • Camere: 4
  • Bagni: 3
  • Box: Singolo
  • Piano: Ultimo di 2
  • Anno costruzione: Inizio lavori 2023
  • Stato conservazione: Nuovo
  • Stato:
  • Spese cond. annue €:
  • Riscaldamento: Autonomo
  • Caratteristiche

    Ascensore, Terrazzi 150 mq, Balconi 5 mq, Mansarda, Condizionatore, Allarme

    Efficienza energetica

    Classe A+

    Localizzazione - Cesena

    Richiedi informazioni

    Via Polenta, 26)

    47521 Cesena (FC)

    0547.631708

    Vendite     Affitti

    Ai sensi e per gli effetti degli articoli 13 e 6 del Regolamento UE 2016/679, dichiaro di aver preso visione dell’informativa di Agenzia Globo di Garavelli Gianni & C. Sas per il trattamento dei dati personali.

    Via Polenta, 26 - 47521 Cesena (FC) - Telefono 0547.631708 - Email info@agenziaimmobiliareglobo.it


    Vendita Attico a Cesena - Rif. ATC63b

    | Mq 329,57 | 1.059.000,00

    Cesena

    S. MANURO IN VALLE (ATC63b): in contesto di dieci unità di prossima realizzazione proponiamo splendido ATTICO disposto su due livelli e servito da ascensore. Al piano nobile troviamo un ampio ingresso/guardaroba con la luminosa zona giorno con cucina a vista per un totale di ben 68 mq , 2 camere da letto matrimoniali con 2 bagni e un ampio terrazzo su tre lati di c.a. 150 mq, ideale per pranzi e cene all'aperto e un ulteriore balcone dove affaccia l'ingresso/guardaroba. Al piano superiore (sottotetto alto) altri tre vani da sfruttare come camere e studio e un vano per il bagno. Completa il tutto un garage di 34 mq.
    L'immobile verrà realizzato con FINITURE DI PREGIO e CARATTERISTICHE DI ALTO RISPARMIO ENERGETICO, ovvero: cappotto termico, riscaldamento autonomo a pavimento con pompa di calore, impianto fotovoltaico da 4 kw, infissi in pvc con anta-ribalta, zanzariere e avvolgibili in alluminio coibentato e motorizzati, tetto in legno ventilato, gronde e pluviali in acciaio inox, bagni con sanitari sospesi e box doccia in alluminio e cristallo, cassetta di sicurezza, luce di emergenza. Saranno inoltre forniti COMPLETI DI MACCHINARI e quindi già funzionanti i seguenti impianti: climatizzazione, allarme, aspirazione centralizzata, VMC (ventilazione meccanica controllata). N.B. Le presenti informazioni non costituiscono elemento contrattuale.

    Riferimento: ATC63b

    Tipologia: Attico

    Comune: Cesena

    Zona: San Mauro in Valle

    Cucina: Angolo cottura

    Camere: 4

    Bagni: 3

    Box: Singolo

    Piano: Ultimo di 2

    Anno costruzione: Inizio lavori 2023

    Stato conservazione: Nuovo

    Stato:

    Spese cond. annue €:

    Riscaldamento: Autonomo

    Ascensore, Terrazzi 150 mq, Balconi 5 mq, Mansarda, Condizionatore, Allarme

    Efficienza energetica
    Classe A+