Vendita Appartamento a San Mauro Pascoli - Rif. TC1079b3

| 310.000,00 | Mq 119,45 | 4 | 2

Descrizione

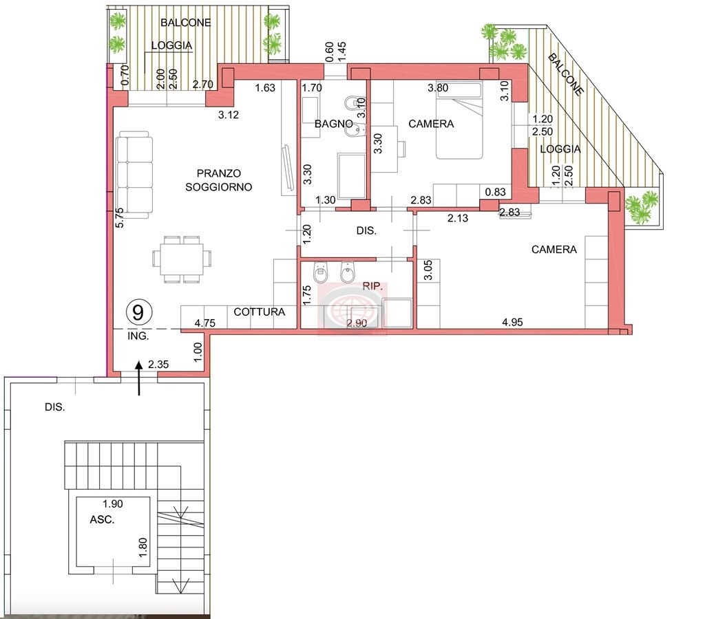
SAN MAURO PASCOLI (TC1079b3): Fabbricato in costruzione in una zona centralissima di San Mauro Pascoli, vicino al nuovo parco ed al supermercato, grazie alla zona molto servita consente il massimo della vivibilità. Il fabbricato, di ultima generazione, verrà costruito con particolare attenzione al risparmio energetico (classe energetica A) dotato di moderne tecnologie di isolamento, impianto fotovoltaico da 2 Kw, inoltre avrà una versione moderna di verde addirittura con fioriere agli angoli dei balconi a caratterizzare la palazzina come vera e propria Oasi Verde. Ampi garage al piano interrato. L'appartamento in oggetto è posto al piano primo con ingresso condominiale, composto da ampia zona giorno con angolo cottura, bagno, wc, due camere da letto, loggia e balcone (per totali mq 20), autorimessa per 2 auto di mq 34. N.B.: Le presenti informazioni non costituiscono elemento contrattuale.

Dettagli

  • Riferimento: TC1079b3
  • Tipologia: Appartamento
  • Comune: San Mauro Pascoli
  • Zona:
  • Cucina: Angolo cottura
  • Camere: 2
  • Bagni: 2
  • Box: Doppio
  • Piano: 1° di 3
  • Anno costruzione: 2025
  • Stato conservazione:
  • Stato: In costruzione
  • Spese cond. annue €:
  • Riscaldamento: Autonomo
  • Caratteristiche

    Ascensore, Terrazzi 19 mq, Predisposizione condizionatore, Predisposizione allarme

    Efficienza energetica

    Classe A

    Localizzazione - San Mauro Pascoli

    Richiedi informazioni

    Via Polenta, 26)

    47521 Cesena (FC)

    0547.631708

    Vendite     Affitti

    Ai sensi e per gli effetti degli articoli 13 e 6 del Regolamento UE 2016/679, dichiaro di aver preso visione dell’informativa di Agenzia Globo di Garavelli Gianni & C. Sas per il trattamento dei dati personali.

    Via Polenta, 26 - 47521 Cesena (FC) - Telefono 0547.631708 - Email info@agenziaimmobiliareglobo.it


    Vendita Appartamento a San Mauro Pascoli - Rif. TC1079b3

    4 | Mq 119,45 | 310.000,00

    San Mauro Pascoli

    SAN MAURO PASCOLI (TC1079b3): Fabbricato in costruzione in una zona centralissima di San Mauro Pascoli, vicino al nuovo parco ed al supermercato, grazie alla zona molto servita consente il massimo della vivibilità. Il fabbricato, di ultima generazione, verrà costruito con particolare attenzione al risparmio energetico (classe energetica A) dotato di moderne tecnologie di isolamento, impianto fotovoltaico da 2 Kw, inoltre avrà una versione moderna di verde addirittura con fioriere agli angoli dei balconi a caratterizzare la palazzina come vera e propria Oasi Verde. Ampi garage al piano interrato. L'appartamento in oggetto è posto al piano primo con ingresso condominiale, composto da ampia zona giorno con angolo cottura, bagno, wc, due camere da letto, loggia e balcone (per totali mq 20), autorimessa per 2 auto di mq 34. N.B.: Le presenti informazioni non costituiscono elemento contrattuale.

    Riferimento: TC1079b3

    Tipologia: Appartamento

    Comune: San Mauro Pascoli

    Zona:

    Cucina: Angolo cottura

    Camere: 2

    Bagni: 2

    Box: Doppio

    Piano: 1° di 3

    Anno costruzione: 2025

    Stato conservazione:

    Stato: In costruzione

    Spese cond. annue €:

    Riscaldamento: Autonomo

    Ascensore, Terrazzi 19 mq, Predisposizione condizionatore, Predisposizione allarme

    Efficienza energetica
    Classe A