Vendita Appartamento a Cesena - Rif. AC607c

San Mauro in Valle | 490.000,00 | Mq 161,5 | | 2

Descrizione

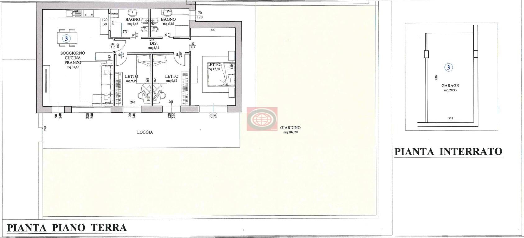
S. MANURO IN VALLE (AC607c): in contesto di dieci unità di prossima realizzazione proponiamo appartamento posto al piano terra con giardino privato (202 mq), zona giorno con cucina a vista di oltre 33 mq, 3 camere da letto e 2 bagni. Completa il tutto un garage di 21 mq. L'immobile verrà realizzato con FINITURE DI PREGIO e CARATTERISTICHE DI ALTO RISPARMIO ENERGETICO, ovvero: cappotto termico, riscaldamento autonomo a pavimento con pompa di calore, impianto fotovoltaico da 4 kw, infissi in pvc con anta-ribalta, zanzariere e avvolgibili in alluminio coibentato e motorizzati, tetto in legno ventilato, gronde e pluviali in acciaio inox, bagni con sanitari sospesi e box doccia in alluminio e cristallo, cassetta di sicurezza, luce di emergenza. Saranno inoltre forniti COMPLETI DI MACCHINARI e quindi già funzionanti i seguenti impianti: climatizzazione, allarme, aspirazione centralizzata, VMC (ventilazione meccanica controllata). N.B. Le presenti informazioni non costituiscono elemento contrattuale.

Dettagli

  • Riferimento: AC607c
  • Tipologia: Appartamento
  • Comune: Cesena
  • Zona: San Mauro in Valle
  • Cucina: Angolo cottura
  • Camere: 3
  • Bagni: 2
  • Box: Singolo
  • Piano: Terra di 2
  • Anno costruzione: Inizio lavori 2023
  • Stato conservazione: Nuovo
  • Stato:
  • Spese cond. annue €:
  • Riscaldamento: Autonomo
  • Caratteristiche

    Ascensore, Giardino di proprietà 202 mq, Condizionatore, Allarme

    Efficienza energetica

    Classe A+

    Localizzazione - Cesena

    Richiedi informazioni

    Via Polenta, 26)

    47521 Cesena (FC)

    0547.631708

    Vendite     Affitti

    Ai sensi e per gli effetti degli articoli 13 e 6 del Regolamento UE 2016/679, dichiaro di aver preso visione dell’informativa di Agenzia Globo di Garavelli Gianni & C. Sas per il trattamento dei dati personali.

    Via Polenta, 26 - 47521 Cesena (FC) - Telefono 0547.631708 - Email info@agenziaimmobiliareglobo.it


    Vendita Appartamento a Cesena - Rif. AC607c

    | Mq 161,5 | 490.000,00

    Cesena

    S. MANURO IN VALLE (AC607c): in contesto di dieci unità di prossima realizzazione proponiamo appartamento posto al piano terra con giardino privato (202 mq), zona giorno con cucina a vista di oltre 33 mq, 3 camere da letto e 2 bagni. Completa il tutto un garage di 21 mq. L'immobile verrà realizzato con FINITURE DI PREGIO e CARATTERISTICHE DI ALTO RISPARMIO ENERGETICO, ovvero: cappotto termico, riscaldamento autonomo a pavimento con pompa di calore, impianto fotovoltaico da 4 kw, infissi in pvc con anta-ribalta, zanzariere e avvolgibili in alluminio coibentato e motorizzati, tetto in legno ventilato, gronde e pluviali in acciaio inox, bagni con sanitari sospesi e box doccia in alluminio e cristallo, cassetta di sicurezza, luce di emergenza. Saranno inoltre forniti COMPLETI DI MACCHINARI e quindi già funzionanti i seguenti impianti: climatizzazione, allarme, aspirazione centralizzata, VMC (ventilazione meccanica controllata). N.B. Le presenti informazioni non costituiscono elemento contrattuale.

    Riferimento: AC607c

    Tipologia: Appartamento

    Comune: Cesena

    Zona: San Mauro in Valle

    Cucina: Angolo cottura

    Camere: 3

    Bagni: 2

    Box: Singolo

    Piano: Terra di 2

    Anno costruzione: Inizio lavori 2023

    Stato conservazione: Nuovo

    Stato:

    Spese cond. annue €:

    Riscaldamento: Autonomo

    Ascensore, Giardino di proprietà 202 mq, Condizionatore, Allarme

    Efficienza energetica
    Classe A+