Vendita Appartamento a Cesena - Rif. AC592a4

San Mauro in Valle | 480.000,00 | Mq 201 | 5 | 1

Descrizione

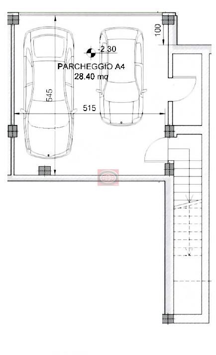
Cesena, zona San Mauro in Valle (AC592a4) in piccola palazzina di sole 5 unità di prossima costruzione proponiamo appartamento posto al Piano Primo, e così composto: al piano terra abbiamo l'ingresso indipendente, corte privata e scala di accesso al piano primo dove troviamo l'alloggio con soggiorno e angolo cottura (mq 27) , disimpegno, camera matrimoniale (mq 14) con soppalco di mq 7 dove realizzare eventuale cabina armadio, camera singola (mq 9,80), bagno, ripostiglio e tre ampi balconi.Nel soggiorno troviamo inoltre una scala d'arredo per accedere al soppalco di mq 13, 50 (ideale per terza camera o studio) con terrazzo a vasca di mq 11 e vano tecnico. Completa la proprietà il garage doppio Mq 28 e piccola dispensa con accesso diretto tramite scala all'interno della corte privata. La costruzione viene realizzata in base alle Norme per l'attuazione in materia del Piano Energetico Nazionale, ogni alloggio è dotato di riscaldamento a pavimento, pompa di calore indipendente, impianto fotovoltaico per un rendimento di circa 5 Kw, predisposizione clima, infissi in legno e scuroni in alluminio con veneziane regolabili. NO ALLACCIO AL GAS CITTADINO. POSSIBILITA' DI DETRAZIONE SISMA BONUS nelle aliquote previste nel 2025. -- N.B. le presenti informazioni non costituiscono elemento contrattuale.

Dettagli

  • Riferimento: AC592a4
  • Tipologia: Appartamento
  • Comune: Cesena
  • Zona: San Mauro in Valle
  • Cucina: Angolo cottura
  • Camere: 3
  • Bagni: 1
  • Box: Doppio
  • Piano: Ultimo di 2
  • Anno costruzione: inizio lavori Giugno 2022
  • Stato conservazione: Nuovo
  • Stato: In costruzione
  • Spese cond. annue €:
  • Riscaldamento: Autonomo
  • Caratteristiche

    Terrazzi 11 mq, Balconi 30 mq, Giardino di proprietà 81 mq, Predisposizione condizionatore, Allarme

    Efficienza energetica

    Classe A+

    Localizzazione - Cesena

    Richiedi informazioni

    Via Polenta, 26)

    47521 Cesena (FC)

    0547.631708

    Vendite     Affitti

    Ai sensi e per gli effetti degli articoli 13 e 6 del Regolamento UE 2016/679, dichiaro di aver preso visione dell’informativa di Agenzia Globo di Garavelli Gianni & C. Sas per il trattamento dei dati personali.

    Via Polenta, 26 - 47521 Cesena (FC) - Telefono 0547.631708 - Email info@agenziaimmobiliareglobo.it


    Vendita Appartamento a Cesena - Rif. AC592a4

    5 | Mq 201 | 480.000,00

    Cesena

    Cesena, zona San Mauro in Valle (AC592a4) in piccola palazzina di sole 5 unità di prossima costruzione proponiamo appartamento posto al Piano Primo, e così composto: al piano terra abbiamo l'ingresso indipendente, corte privata e scala di accesso al piano primo dove troviamo l'alloggio con soggiorno e angolo cottura (mq 27) , disimpegno, camera matrimoniale (mq 14) con soppalco di mq 7 dove realizzare eventuale cabina armadio, camera singola (mq 9,80), bagno, ripostiglio e tre ampi balconi.Nel soggiorno troviamo inoltre una scala d'arredo per accedere al soppalco di mq 13, 50 (ideale per terza camera o studio) con terrazzo a vasca di mq 11 e vano tecnico. Completa la proprietà il garage doppio Mq 28 e piccola dispensa con accesso diretto tramite scala all'interno della corte privata. La costruzione viene realizzata in base alle Norme per l'attuazione in materia del Piano Energetico Nazionale, ogni alloggio è dotato di riscaldamento a pavimento, pompa di calore indipendente, impianto fotovoltaico per un rendimento di circa 5 Kw, predisposizione clima, infissi in legno e scuroni in alluminio con veneziane regolabili. NO ALLACCIO AL GAS CITTADINO. POSSIBILITA' DI DETRAZIONE SISMA BONUS nelle aliquote previste nel 2025. -- N.B. le presenti informazioni non costituiscono elemento contrattuale.

    Riferimento: AC592a4

    Tipologia: Appartamento

    Comune: Cesena

    Zona: San Mauro in Valle

    Cucina: Angolo cottura

    Camere: 3

    Bagni: 1

    Box: Doppio

    Piano: Ultimo di 2

    Anno costruzione: inizio lavori Giugno 2022

    Stato conservazione: Nuovo

    Stato: In costruzione

    Spese cond. annue €:

    Riscaldamento: Autonomo

    Terrazzi 11 mq, Balconi 30 mq, Giardino di proprietà 81 mq, Predisposizione condizionatore, Allarme

    Efficienza energetica
    Classe A+