Vendita Appartamento a Cervia - Rif. AM103a9

Tagliata | 310.000,00 | Mq 110 | 5 | 2

Descrizione

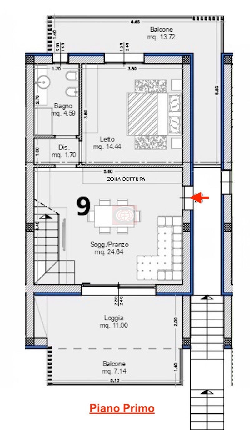
TAGLIATA DI CERVIA (AM103a9): proponiamo in contesto residenziale di prossima realizzazione, ampio appartamento in bioedilizia, disposto su due livelli. L'appartamento al PIANO PRIMO è così composto: ingresso su soggiorno con angolo cottura di c.a. 25 mq, bagno, camera matrimoniale con accesso du ampio balcone mentre nella zona giorno si trova un comodo terrazzo in parte loggiato di 18 mq ideale per pranzi e cene all'aperto; al PIANO SOTTOTETTO troviamo due vani da sfruttare come camere e un vano per eventuale ulteriore bagno. Completa il tutto un posto auto esterno. Ottime finiture, termocappotto, riscaldamento a pavimento con sistema a pompa di calore, fotovoltaico da 1 kw, infissi in pvc con tapparelle motorizzate, lucernai motorizzati e con sensore pioggia, sanitari sospesi, predisposizione per climatizzazione e allarme. NO GAS. Consegna prevista per fine 2025. Possibilità di acquisto garage a parte al prezzo di euro 25.000,00 e cantinetta al prezzo di euro 8.000,00 ------ N.B. Le presenti informazioni non costituiscono elemento contrattuale.

Dettagli

  • Riferimento: AM103a9
  • Tipologia: Appartamento
  • Comune: Cervia
  • Zona: Tagliata
  • Cucina: Angolo cottura
  • Camere: 3
  • Bagni: 2
  • Box: Posto auto scoperto
  • Piano: Su più livelli di 1
  • Anno costruzione:
  • Stato conservazione: Nuovo
  • Stato: In progetto
  • Spese cond. annue €:
  • Riscaldamento: Autonomo
  • Caratteristiche

    Terrazzo 18 mq, Balcone 14 mq, Mansarda, Predisposizione condizionatore, Predisposizione allarme

    Efficienza energetica

    Classe A3

    Prestazione energetica del fabbricato inverno estate

    Localizzazione - Cervia

    Richiedi informazioni

    Via Polenta, 26)

    47521 Cesena (FC)

    0547.631708

    Vendite     Affitti

    Ai sensi e per gli effetti degli articoli 13 e 6 del Regolamento UE 2016/679, dichiaro di aver preso visione dell’informativa di Agenzia Globo di Garavelli Gianni & C. Sas per il trattamento dei dati personali.

    Via Polenta, 26 - 47521 Cesena (FC) - Telefono 0547.631708 - Email info@agenziaimmobiliareglobo.it


    Vendita Appartamento a Cervia - Rif. AM103a9

    5 | Mq 110 | 310.000,00

    Cervia

    TAGLIATA DI CERVIA (AM103a9): proponiamo in contesto residenziale di prossima realizzazione, ampio appartamento in bioedilizia, disposto su due livelli. L'appartamento al PIANO PRIMO è così composto: ingresso su soggiorno con angolo cottura di c.a. 25 mq, bagno, camera matrimoniale con accesso du ampio balcone mentre nella zona giorno si trova un comodo terrazzo in parte loggiato di 18 mq ideale per pranzi e cene all'aperto; al PIANO SOTTOTETTO troviamo due vani da sfruttare come camere e un vano per eventuale ulteriore bagno. Completa il tutto un posto auto esterno. Ottime finiture, termocappotto, riscaldamento a pavimento con sistema a pompa di calore, fotovoltaico da 1 kw, infissi in pvc con tapparelle motorizzate, lucernai motorizzati e con sensore pioggia, sanitari sospesi, predisposizione per climatizzazione e allarme. NO GAS. Consegna prevista per fine 2025. Possibilità di acquisto garage a parte al prezzo di euro 25.000,00 e cantinetta al prezzo di euro 8.000,00 ------ N.B. Le presenti informazioni non costituiscono elemento contrattuale.

    Riferimento: AM103a9

    Tipologia: Appartamento

    Comune: Cervia

    Zona: Tagliata

    Cucina: Angolo cottura

    Camere: 3

    Bagni: 2

    Box: Posto auto scoperto

    Piano: Su più livelli di 1

    Anno costruzione:

    Stato conservazione: Nuovo

    Stato: In progetto

    Spese cond. annue €:

    Riscaldamento: Autonomo

    Terrazzo 18 mq, Balcone 14 mq, Mansarda, Predisposizione condizionatore, Predisposizione allarme

    Efficienza energetica
    Classe A3
    Prestazione energetica del fabbricato inverno estate