Vendita Appartamento a Bellaria-Igea Marina - Rif. TC1060a3

Bellaria | 339.000,00 | Mq 93 | 3 | 1

Descrizione

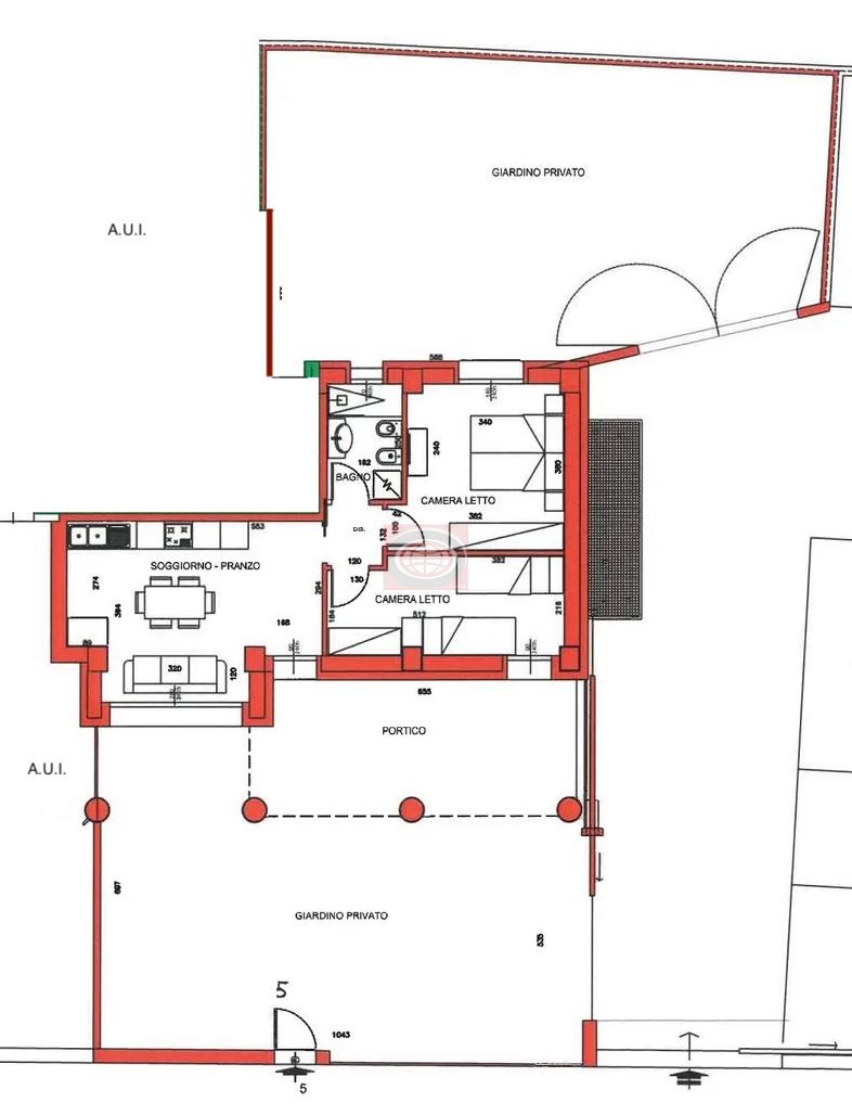
BELLARIA (TC1060a3): in zona centrale, vicino al mare e a due passi dall'Isola dei Platani, il viale principale di Bellaria, considerata una delle più belle passeggiate della Riviera, verranno realizzati degli splendidi appartamenti dall'alto valore strutturale e architettonico contesto di 35 unità di prossima realizzazione proponiamo appartamento trilocale posto al piano terra con ingresso indipendente, zona giorno con cucina a vista, 2 camere da letto, 1 bagno, portico e giardino privato di 169 mq. L'immobile verrà realizzato con FINITURE DI PREGIO e CARATTERISTICHE DI ALTO RISPARMIO ENERGETICO ed ECOSOSTENIBILITA'. Saranno in classe energetica A, dotati di moderne tecnologie di isolamento, infissi in PVC con predisposizione ventilazione meccanica e vetri termo/acustico, impianto di riscaldamento e raffrescamento con pompa di calore, impianto fotovoltaico e gas free per la sostenibilità ambientale. Possibilità di acquistare a parte il garage, nel piano interrato, (€ 30.000) e /o un posto auto esterno (€ 10.000). N.B. Le presenti informazioni non costituiscono elemento contrattuale.

Dettagli

  • Riferimento: TC1060a3
  • Tipologia: Appartamento
  • Comune: Bellaria-Igea Marina
  • Zona: Bellaria
  • Cucina: Angolo cottura
  • Camere: 2
  • Bagni: 1
  • Box:
  • Piano: Terra di 7
  • Anno costruzione:
  • Stato conservazione:
  • Stato: In costruzione
  • Spese cond. annue €:
  • Riscaldamento: Autonomo
  • Caratteristiche

    Ascensore, Giardino di proprietà 169 mq, Condizionatore, Predisposizione allarme

    Efficienza energetica

    Classe A+

    Localizzazione - Bellaria-Igea Marina

    Richiedi informazioni

    Via Polenta, 26)

    47521 Cesena (FC)

    0547.631708

    Vendite     Affitti

    Ai sensi e per gli effetti degli articoli 13 e 6 del Regolamento UE 2016/679, dichiaro di aver preso visione dell’informativa di Agenzia Globo di Garavelli Gianni & C. Sas per il trattamento dei dati personali.

    Via Polenta, 26 - 47521 Cesena (FC) - Telefono 0547.631708 - Email info@agenziaimmobiliareglobo.it


    Vendita Appartamento a Bellaria-Igea Marina - Rif. TC1060a3

    3 | Mq 93 | 339.000,00

    Bellaria-Igea Marina

    BELLARIA (TC1060a3): in zona centrale, vicino al mare e a due passi dall'Isola dei Platani, il viale principale di Bellaria, considerata una delle più belle passeggiate della Riviera, verranno realizzati degli splendidi appartamenti dall'alto valore strutturale e architettonico contesto di 35 unità di prossima realizzazione proponiamo appartamento trilocale posto al piano terra con ingresso indipendente, zona giorno con cucina a vista, 2 camere da letto, 1 bagno, portico e giardino privato di 169 mq. L'immobile verrà realizzato con FINITURE DI PREGIO e CARATTERISTICHE DI ALTO RISPARMIO ENERGETICO ed ECOSOSTENIBILITA'. Saranno in classe energetica A, dotati di moderne tecnologie di isolamento, infissi in PVC con predisposizione ventilazione meccanica e vetri termo/acustico, impianto di riscaldamento e raffrescamento con pompa di calore, impianto fotovoltaico e gas free per la sostenibilità ambientale. Possibilità di acquistare a parte il garage, nel piano interrato, (€ 30.000) e /o un posto auto esterno (€ 10.000). N.B. Le presenti informazioni non costituiscono elemento contrattuale.

    Riferimento: TC1060a3

    Tipologia: Appartamento

    Comune: Bellaria-Igea Marina

    Zona: Bellaria

    Cucina: Angolo cottura

    Camere: 2

    Bagni: 1

    Box:

    Piano: Terra di 7

    Anno costruzione:

    Stato conservazione:

    Stato: In costruzione

    Spese cond. annue €:

    Riscaldamento: Autonomo

    Ascensore, Giardino di proprietà 169 mq, Condizionatore, Predisposizione allarme

    Efficienza energetica
    Classe A+