Vendita Appartamento a Bellaria-Igea Marina - Rif. BC460a1

Bellaria | 250.000,00 | Mq 68 | 2 | 1

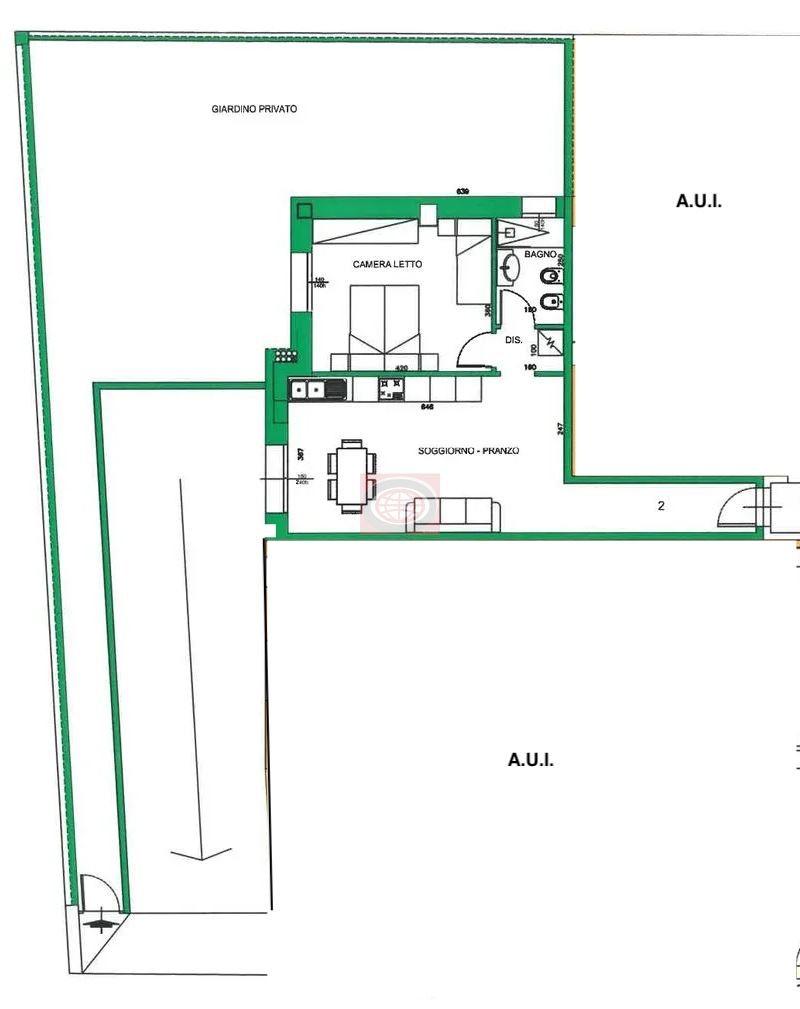
Descrizione

BELLARIA (BC460a1): in zona centrale, vicino al mare e a due passi dall'Isola dei platani, il viale principale di Bellaria, considerato una delle più belle passeggiate della Riviera, in un contesto di 35 unità di prossima realizzazione proponiamo appartamento bilocale posto al piano terra e servito da ascensore, zona giorno con cucina a vista, 1 camera da letto, 1 bagno e giardino privato di 93 mq. L'immobile verrà realizzato con FINITURE DI PREGIO e CARATTERISTICHE DI ALTO RISPARMIO ENERGETICO ed ECOSOSTENIBILITA'. Saranno in classe energetica A, dotati di moderne tecnologie di isolamento, infissi in PVC con predisposizione ventilazione meccanica e vetri termo/acustico, impianto di riscaldamento e raffrescamento con pompa di calore, impianto fotovoltaico e gas free per la sostenibilità ambientale. Possibilità di acquistare a parte il garage, nel piano interrato, (€ 30.000) e /o un posto auto esterno (€ 10.000). N.B. Le presenti informazioni non costituiscono elemento contrattuale.

Dettagli

  • Riferimento: BC460a1
  • Tipologia: Appartamento
  • Comune: Bellaria-Igea Marina
  • Zona: Bellaria
  • Cucina: Angolo cottura
  • Camere: 1
  • Bagni: 1
  • Box:
  • Piano: Terra di 7
  • Anno costruzione:
  • Stato conservazione:
  • Stato: In costruzione
  • Spese cond. annue €:
  • Riscaldamento: Autonomo
  • Caratteristiche

    Ascensore, Giardino di proprietà 93 mq, Condizionatore, Predisposizione allarme

    Efficienza energetica

    Classe A+

    Localizzazione - Bellaria-Igea Marina

    Richiedi informazioni

    Via Polenta, 26)

    47521 Cesena (FC)

    0547.631708

    Vendite     Affitti

    Ai sensi e per gli effetti degli articoli 13 e 6 del Regolamento UE 2016/679, dichiaro di aver preso visione dell’informativa di Agenzia Globo di Garavelli Gianni & C. Sas per il trattamento dei dati personali.

    Via Polenta, 26 - 47521 Cesena (FC) - Telefono 0547.631708 - Email info@agenziaimmobiliareglobo.it


    Vendita Appartamento a Bellaria-Igea Marina - Rif. BC460a1

    2 | Mq 68 | 250.000,00

    Bellaria-Igea Marina

    BELLARIA (BC460a1): in zona centrale, vicino al mare e a due passi dall'Isola dei platani, il viale principale di Bellaria, considerato una delle più belle passeggiate della Riviera, in un contesto di 35 unità di prossima realizzazione proponiamo appartamento bilocale posto al piano terra e servito da ascensore, zona giorno con cucina a vista, 1 camera da letto, 1 bagno e giardino privato di 93 mq. L'immobile verrà realizzato con FINITURE DI PREGIO e CARATTERISTICHE DI ALTO RISPARMIO ENERGETICO ed ECOSOSTENIBILITA'. Saranno in classe energetica A, dotati di moderne tecnologie di isolamento, infissi in PVC con predisposizione ventilazione meccanica e vetri termo/acustico, impianto di riscaldamento e raffrescamento con pompa di calore, impianto fotovoltaico e gas free per la sostenibilità ambientale. Possibilità di acquistare a parte il garage, nel piano interrato, (€ 30.000) e /o un posto auto esterno (€ 10.000). N.B. Le presenti informazioni non costituiscono elemento contrattuale.

    Riferimento: BC460a1

    Tipologia: Appartamento

    Comune: Bellaria-Igea Marina

    Zona: Bellaria

    Cucina: Angolo cottura

    Camere: 1

    Bagni: 1

    Box:

    Piano: Terra di 7

    Anno costruzione:

    Stato conservazione:

    Stato: In costruzione

    Spese cond. annue €:

    Riscaldamento: Autonomo

    Ascensore, Giardino di proprietà 93 mq, Condizionatore, Predisposizione allarme

    Efficienza energetica
    Classe A+